Description
Spacious Two-Bedroom Apartment For Sale - No Onward Chain - Midlothian Court, Worsdell Drive, Gateshead
Perfectly suited for busy professionals, this stylish first-floor apartment in the sought-after Midlothian Court development offers generous living space and an enviable location with excellent commuter links. Situated within easy reach of Newcastle city centre and close to the A1 for travel further afield, convenience truly meets comfort here.
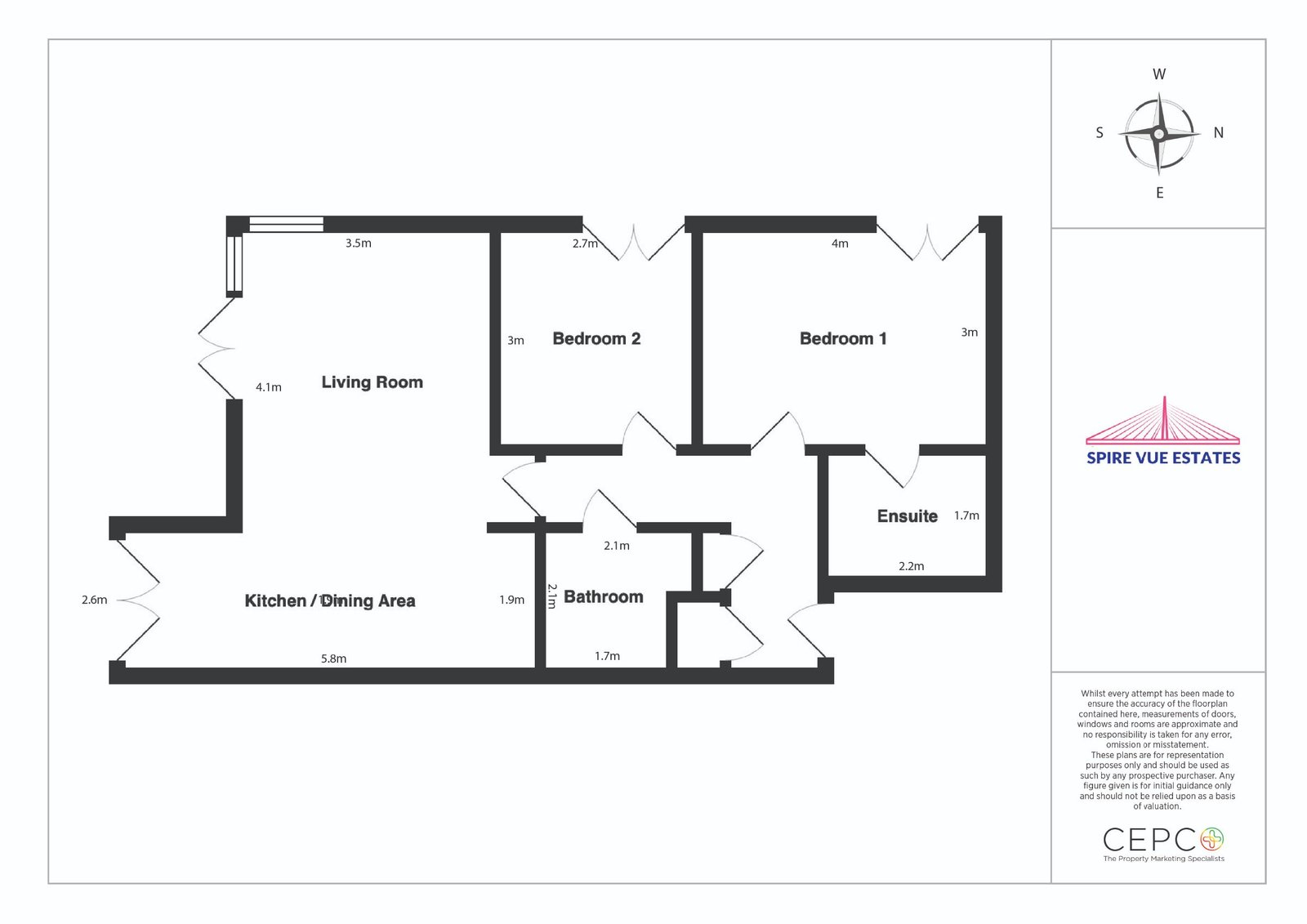
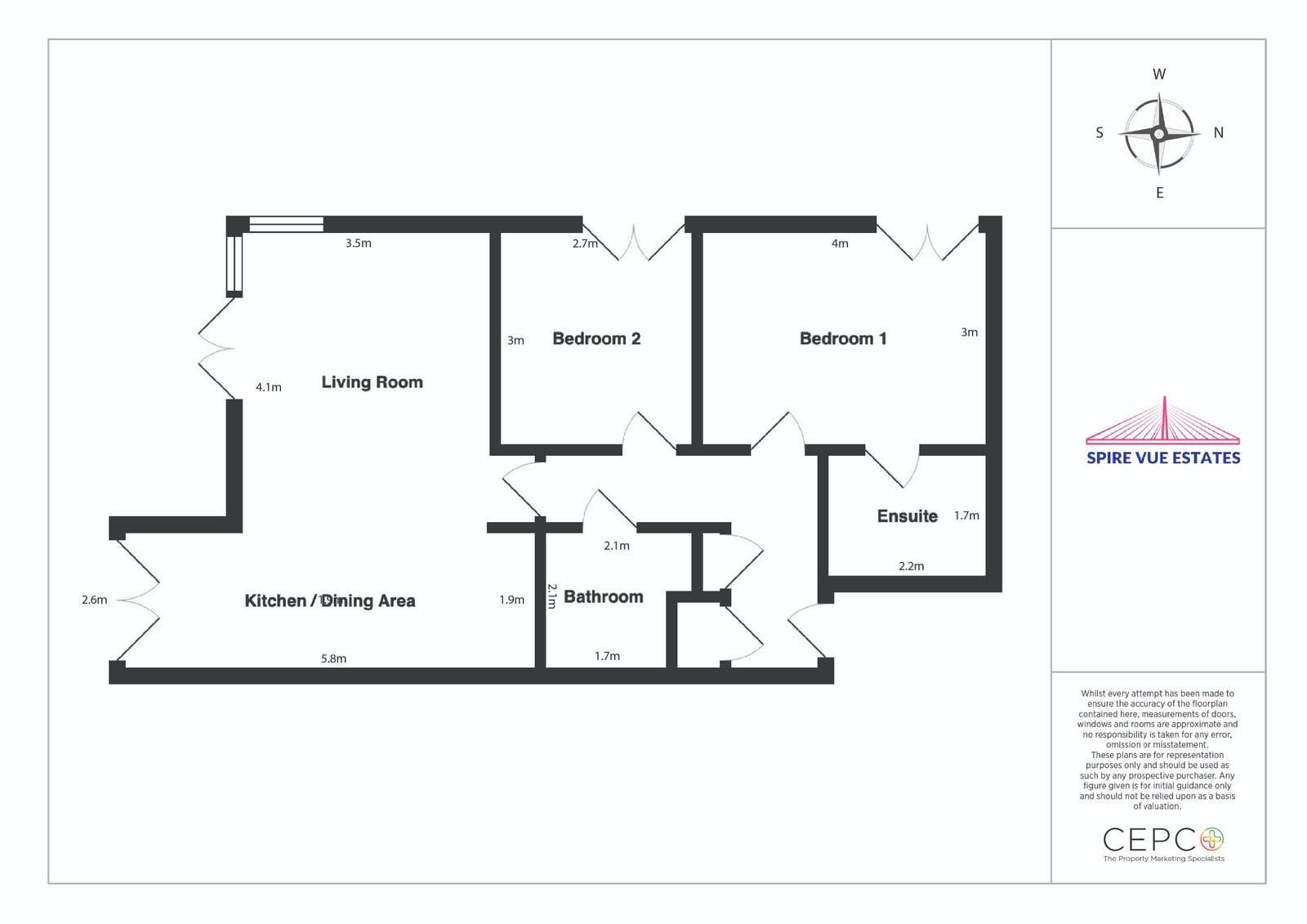
This larger-style apartment boasts a modern open-plan layout, seamlessly connecting the contemporary kitchen, dining area, and lounge. The living room opens onto a private balcony overlooking the quiet street, creating a perfect spot to unwind.
Accommodation includes two well-proportioned bedrooms, with the master featuring an en-suite shower room for added luxury. Both bedrooms enjoy Juliet balconies, allowing plenty of natural light and an airy feel. A separate family bathroom completes the internal layout.
Additional highlights include your own undercover parking bay, ensuring both security and convenience.
Offered with no onward chain, this is a fantastic opportunity to secure a spacious, modern apartment in a prime location. Early viewing is highly recommended.
Council Tax Band: C
Tenure: Leasehold
Parking options: Off Street, Residents, Undercroft
Electricity supply: Mains
Heating: Electric
Water supply: Mains
Property Documents
Video
Similar Listings
Fourth Street, Blackhall Colliery, Hartlepool
Fourth Street, Blackhall Colliery, Hartlepool- Beds: 2
- Bath: 1
Flat , Park Hall, The Cloisters, Sunderland
Flat , Park Hall, The Cloisters, Sunderland- Beds: 2
- Bath: 1
- Cathryn
Contact me
















